Постановление Правительства Ростовской области от 17.05.2019 № 325
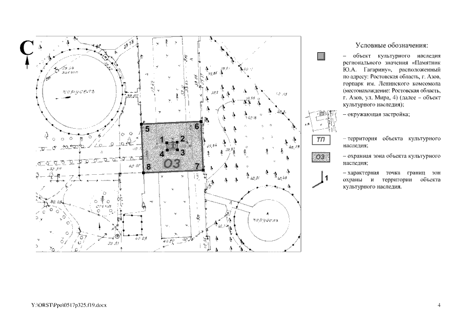
"Об установлении зон охраны объекта культурного наследия регионального значения "Памятник Ю.А. Гагарину" и утверждении требований к градостроительным регламентам в границах территорий данных зон"
"Об установлении зон охраны объекта культурного наследия регионального значения "Памятник Ю.А. Гагарину" и утверждении требований к градостроительным регламентам в границах территорий данных зон"
Номер опубликования: 6100201905210020
Дата опубликования:
21.05.2019
