Официальное опубликование правовых актов
ОФИЦИАЛЬНОЕ ОПУБЛИКОВАНИЕ
Постановление Правительства Ростовской области от 17.05.2019 № 315
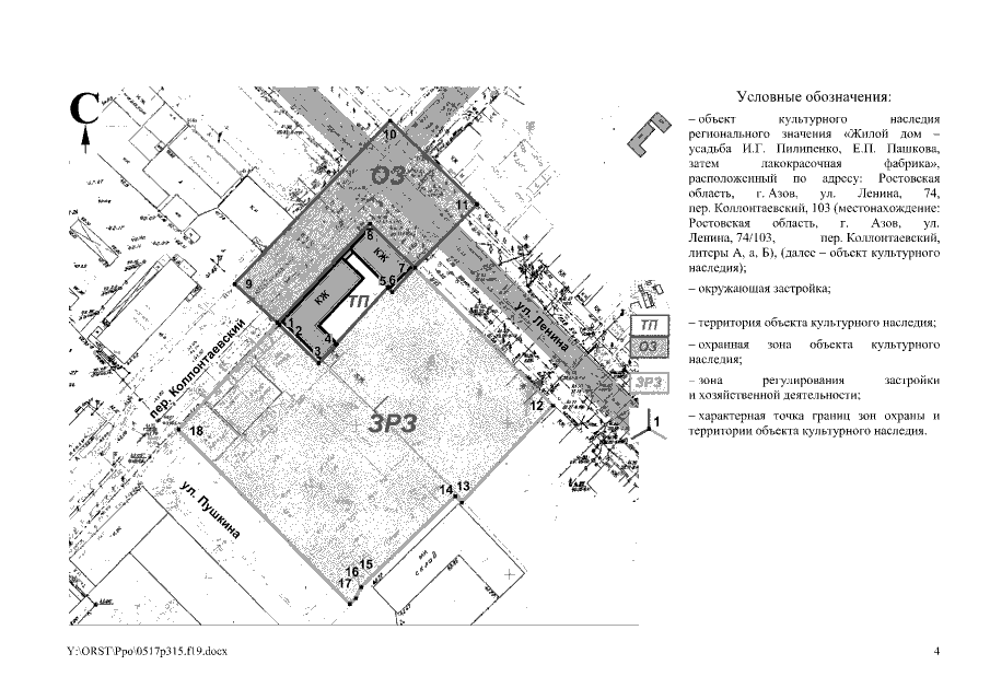
"Об установлении зон охраны объекта культурного наследия регионального значения "Жилой дом – усадьба И.Г. Пилипенко, Е.П. Пашкова, затем лакокрасочная фабрика" и утверждении требований к градостроительным регламентам в границах территорий данных зон"
Номер опубликования: 6100201905210010
Дата опубликования: 21.05.2019
Страница №4 из 8:
Увеличить