Официальное опубликование правовых актов
ОФИЦИАЛЬНОЕ ОПУБЛИКОВАНИЕ
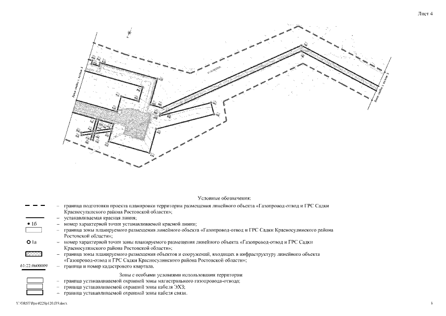
Постановление Правительства Ростовской области от 28.02.2019 № 120
"Об утверждении проекта планировки и проекта межевания территории размещения линейных объектов: "Газопровод-отвод и ГРС Садки Красносулинского района Ростовской области" и "Межпоселковый газопровод от ГРС Садки к х. Садки, х. Дудкино Красносулинского района Ростовской области"
Номер опубликования: 6100201903010009
Дата опубликования: 01.03.2019
Страница №8 из 123:
Увеличить