Официальное опубликование правовых актов
ОФИЦИАЛЬНОЕ ОПУБЛИКОВАНИЕ
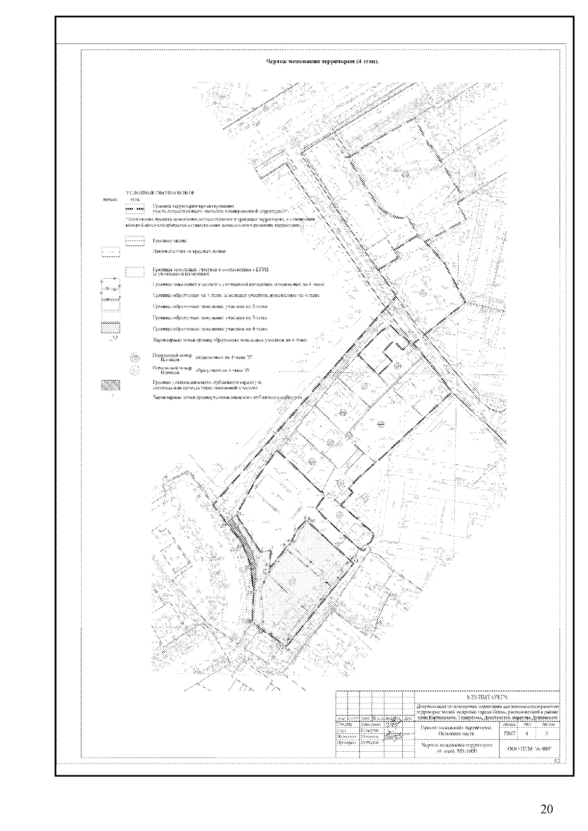
Приказ Министерства градостроительства и архитектуры Пензенской области от 12.12.2023 № 23-316
"Об утверждении документации по планировке территории для комплексного развития территории жилой застройки города Пензы, расположенной в районе улиц Карпинского, Тимирязева, Декабристов, переулка Дунаевского"
(Зарегистрирован 12.12.2023 № 23-316)
Номер опубликования: 5801202312150017
Дата опубликования: 15.12.2023
Страница №35 из 36:
Увеличить