Официальное опубликование правовых актов
ОФИЦИАЛЬНОЕ ОПУБЛИКОВАНИЕ
Приказ Инспекции государственной охраны объектов культурного наследия Оренбургской области от 10.12.2024 № 01-08-518
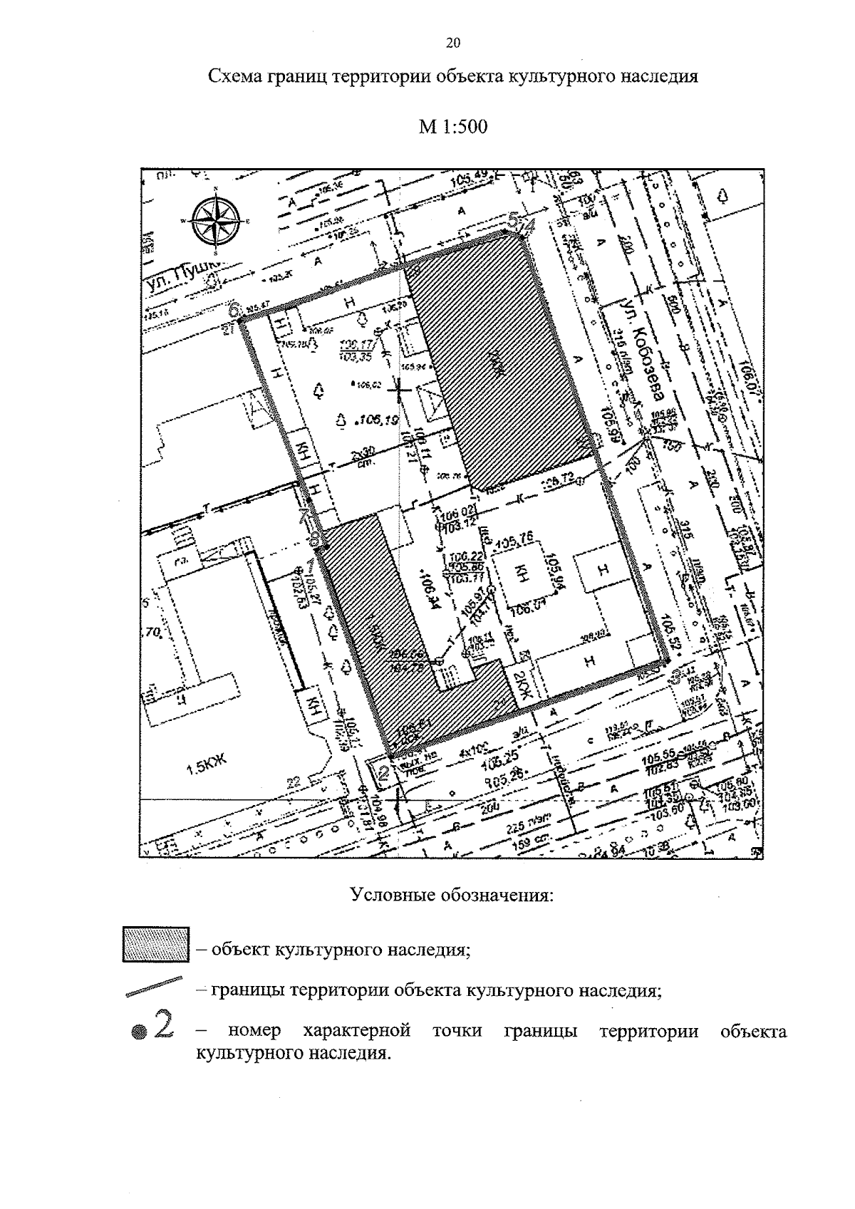
"О включении выявленного объекта культурного наследия в единый государственный реестр объектов культурного наследия (памятников истории и культуры) народов Российской Федерации в качестве объекта культурного наследия регионального значения (вид – ансамбль) "Городская усадьба титулярного советника, винного откупщика В.И. Звенигородского (в последней трети XIX века – купцов Оглодковых, в начале XX века – купцов Исаковых)", 1820-е гг. – 1870-1880-е гг. (Оренбургская область, город Оренбург, улица Кобозева, дом 27/улица Пушкинская, дом 29/улица Ленинская, дом 24, литеры АБ), об утверждении предмета охраны, границ и режима использования территории объекта культурного наследия"
(Зарегистрирован 10.12.2024 № 0210/2024/22)
Номер опубликования: 5601202412100014
Дата опубликования: 10.12.2024
Страница №20 из 22:
Увеличить