Официальное опубликование правовых актов
ОФИЦИАЛЬНОЕ ОПУБЛИКОВАНИЕ
Приказ Министерства градостроительной деятельности и развития агломераций Нижегородской области от 03.04.2026 № 05-01-03/22
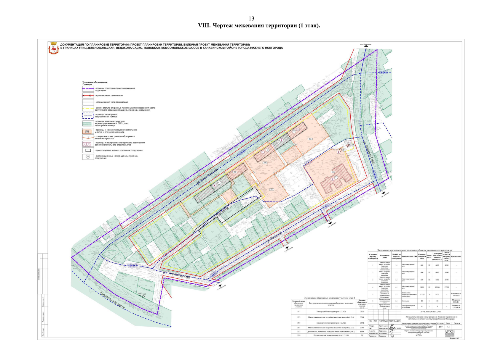
"Об утверждении документации по планировке территории (проекта планировки территории, включая проект межевания территории) в границах улиц Зеленодольская, Ледокола Садко, Полоцкая, Комсомольское шоссе в Канавинском районе города Нижнего Новгорода"
(Зарегистрирован 22.04.2026 № 30219-330-005-01-03/22)
Номер опубликования: 5201202604220023
Дата опубликования: 22.04.2026
Страница №15 из 17:
Увеличить