Официальное опубликование правовых актов
ОФИЦИАЛЬНОЕ ОПУБЛИКОВАНИЕ
Приказ Министерства градостроительной деятельности и развития агломераций Нижегородской области от 05.02.2026 № 05-01-03/5
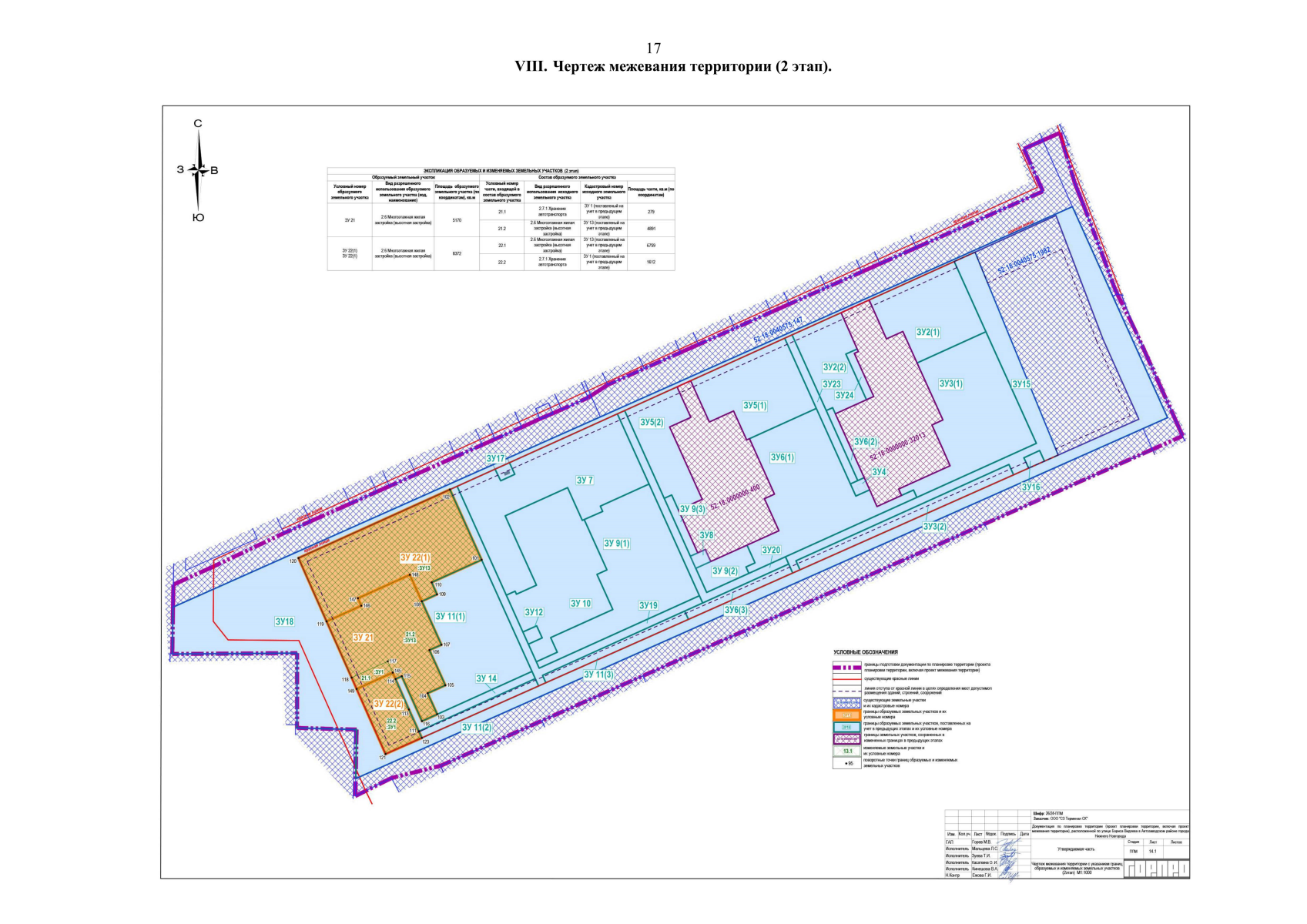
"Об утверждении документации по планировке территории (проекта планировки территории, включая проект межевания территории), расположенной по улице Бориса Видяева в Автозаводском районе города Нижнего Новгорода"
(Зарегистрирован 17.02.2026 № 29888-330-005-01-03/5)
Номер опубликования: 5201202602180002
Дата опубликования: 18.02.2026
Страница №19 из 20:
Увеличить