Официальное опубликование правовых актов
ОФИЦИАЛЬНОЕ ОПУБЛИКОВАНИЕ
Приказ Министерства градостроительной деятельности и развития агломераций Нижегородской области от 08.12.2025 № 07-02-03/108
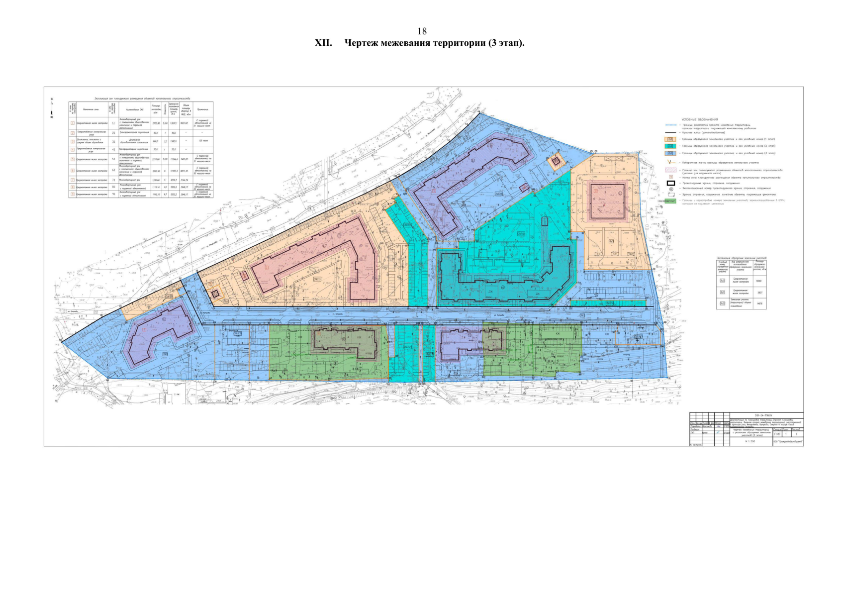
"Об утверждении документации по планировке территории (проекта планировки территории, включая проект межевания территории) в границах улиц Менделеева, Кутузова, Озерная в городе Саров Нижегородской области"
(Зарегистрирован 20.01.2026 № 29763-330-007-02-03/108)
Номер опубликования: 5201202601220009
Дата опубликования: 22.01.2026
Страница №20 из 22:
Увеличить