Официальное опубликование правовых актов
ОФИЦИАЛЬНОЕ ОПУБЛИКОВАНИЕ
Приказ Министерства градостроительной деятельности и развития агломераций Нижегородской области от 08.12.2025 № 07-02-03/107
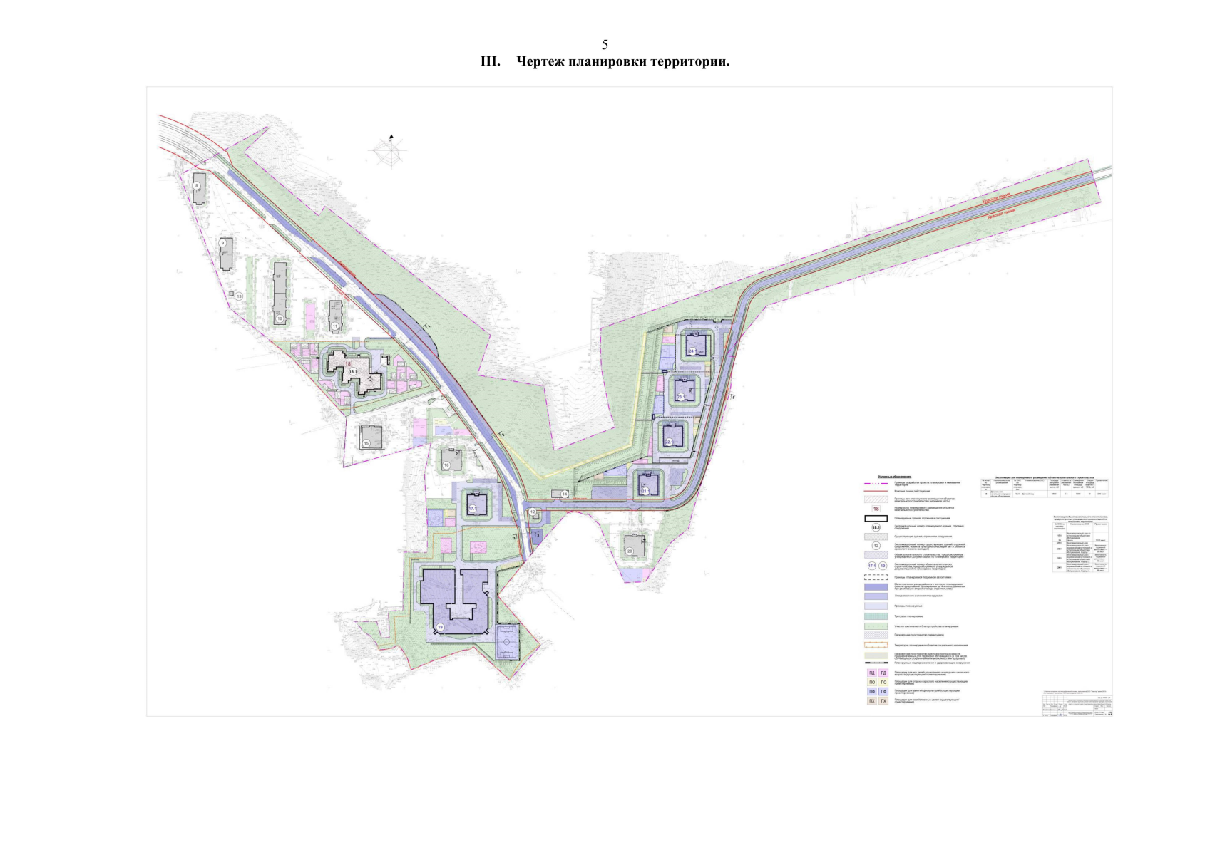
"Об утверждении документации по внесению изменений в документацию по планировке территории (проект планировки территории, включая проект межевания территории), прилегающей с восточной стороны к деревне Никульское в Кстовском районе городского округа город Нижний Новгород Нижегородской области, с западной стороны к Нижегородскому району города Нижнего Новгорода"
(Зарегистрирован 20.01.2026 № 29762-330-007-02-03/107)
Номер опубликования: 5201202601220008
Дата опубликования: 22.01.2026
Страница №7 из 7:
Увеличить