Официальное опубликование правовых актов
ОФИЦИАЛЬНОЕ ОПУБЛИКОВАНИЕ
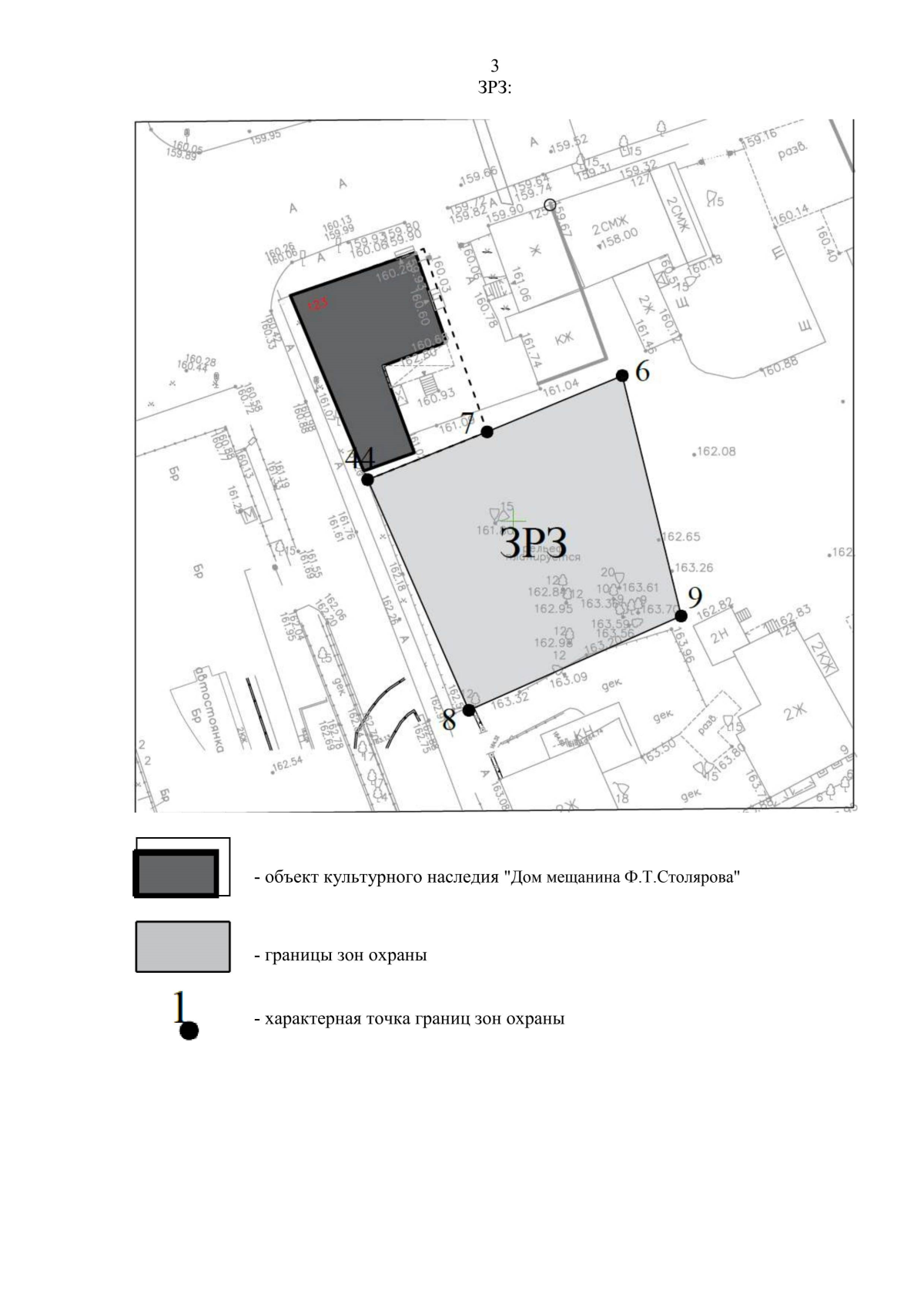
Постановление Правительства Нижегородской области от 05.12.2023 № 1047
"Об установлении зон охраны объекта культурного наследия регионального значения "Дом мещанина Ф.Т.Столярова" (г. Нижний Новгород, ул. Горького Максима, 123) и утверждении требований к градостроительным регламентам в границах территорий данных зон"
Номер опубликования: 5200202312060005
Дата опубликования: 06.12.2023
Страница №5 из 14:
Увеличить