Официальное опубликование правовых актов
ОФИЦИАЛЬНОЕ ОПУБЛИКОВАНИЕ
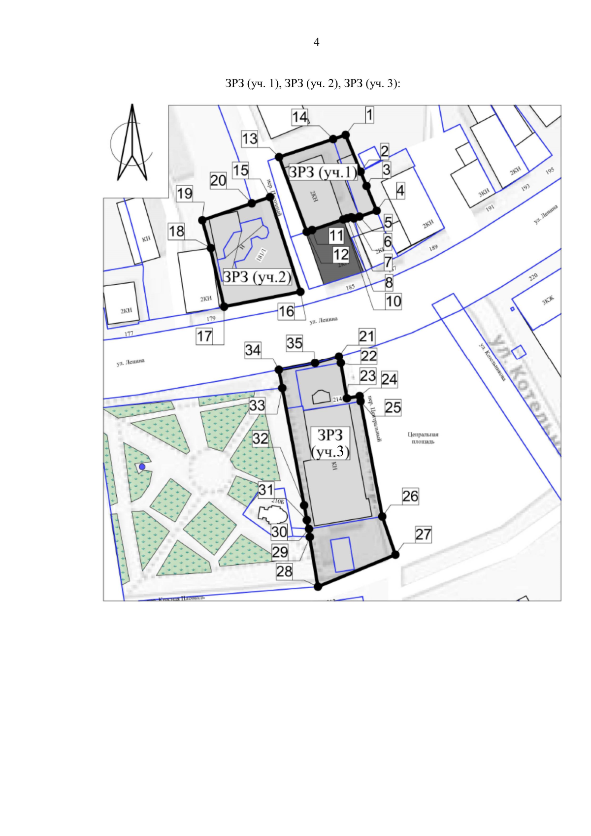
Постановление Правительства Нижегородской области от 22.09.2023 № 864
"Об установлении зон охраны объектов культурного наследия, расположенных в Богородском муниципальном округе Нижегородской области, утверждении требований к градостроительным регламентам в границах территорий данных зон"
Номер опубликования: 5200202309260008
Дата опубликования: 26.09.2023
Страница №6 из 53:
Увеличить