Официальное опубликование правовых актов
ОФИЦИАЛЬНОЕ ОПУБЛИКОВАНИЕ
Постановление Правительства Нижегородской области от 04.09.2023 № 807
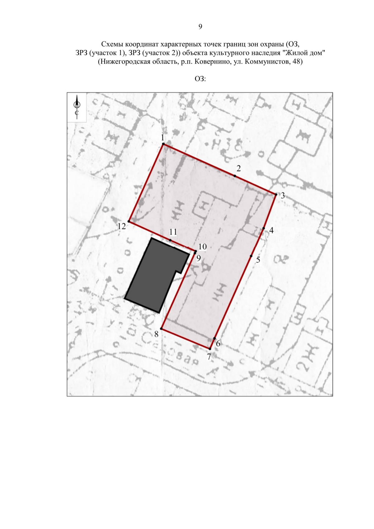
"Об установлении зон охраны объектов культурного наследия регионального значения, расположенных в р.п. Ковернино Нижегородской области, утверждении требований к градостроительным регламентам в границах территорий данных зон"
Номер опубликования: 5200202309060001
Дата опубликования: 06.09.2023
Страница №11 из 30:
Увеличить