Официальное опубликование правовых актов
ОФИЦИАЛЬНОЕ ОПУБЛИКОВАНИЕ
Постановление Правительства Нижегородской области от 10.05.2023 № 391
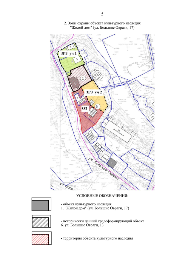
"Об установлении зон охраны объектов культурного наследия регионального значения "Жилой дом" (ул. Большие Овраги, 5), "Жилой дом" (ул. Большие Овраги, 17), расположенных в г. Нижнем Новгороде, и утверждении требований к градостроительным регламентам в границах территорий данных зон"
Номер опубликования: 5200202305120008
Дата опубликования: 12.05.2023
Страница №7 из 24:
Увеличить