Официальное опубликование правовых актов
ОФИЦИАЛЬНОЕ ОПУБЛИКОВАНИЕ
Постановление Правительства Нижегородской области от 25.03.2019 № 158
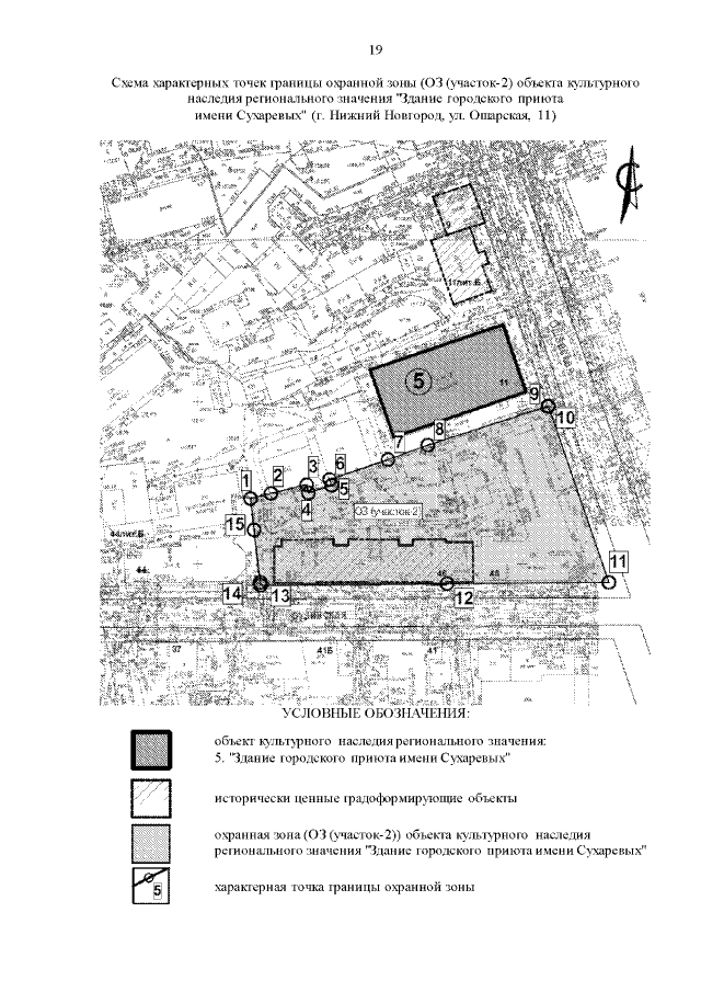
"Об установлении зон охраны объектов культурного наследия регионального значения, расположенных на улицах Алексеевской, Грузинской, Ошарской в г. Нижнем Новгороде, и утверждении требований к градостроительным регламентам в границах данных зон"
Номер опубликования: 5200201903270006
Дата опубликования: 27.03.2019
Страница №21 из 32:
Увеличить