Официальное опубликование правовых актов
ОФИЦИАЛЬНОЕ ОПУБЛИКОВАНИЕ
Постановление Правительства Нижегородской области от 15.07.2016 № 462
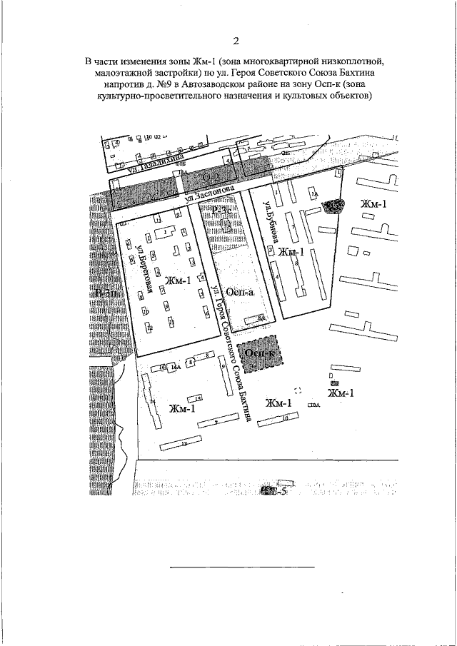
"Об утверждении изменений в генеральный план города Нижнего Новгорода, утвержденный постановлением городской Думы города Нижнего Новгорода от 17 марта 2010 года № 22"
Номер опубликования: 5200201607190004
Дата опубликования: 19.07.2016
Страница №4 из 4:
Увеличить