Официальное опубликование правовых актов
ОФИЦИАЛЬНОЕ ОПУБЛИКОВАНИЕ
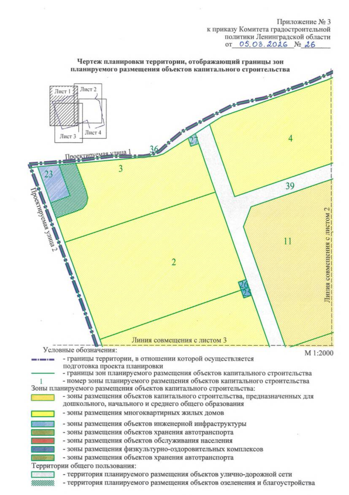
Приказ Комитета градостроительной политики Ленинградской области от 05.03.2026 № 26
"Об утверждении проекта планировки территории и проекта межевания территории, включающей земельные участки с кадастровыми номерами 47:24:0101001:622, 47:24:0101001:623, 47:24:0101001:619, 47:24:0101001:612, 47:24:0101001:617, 47:24:0101001:616, 47:24:0101001:610, 47:24:0101001:611, 47:24:0101001:614, 47:24:0101001:618, 47:24:0101001:615, и расположенной в г. Коммунар муниципального образования Гатчинский муниципальный округ Ленинградской области"
(Зарегистрирован 05.03.2026 № 01-06-26/2026)
Номер опубликования: 4701202603100004
Дата опубликования: 10.03.2026
Страница №15 из 59:
Увеличить