Официальное опубликование правовых актов
ОФИЦИАЛЬНОЕ ОПУБЛИКОВАНИЕ
Приказ Комитета по охране объектов культурного наследия Курской области от 01.03.2021 № 01.1-08/64
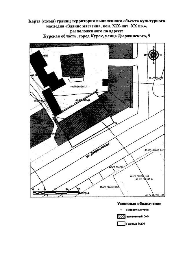
"Об утверждении границ и режима использования территории выявленного объекта культурного наследия "Здание магазина, кон. ХIХ-нач. ХХ вв.", расположенного по адресу: Курская область, город Курск, улица Дзержинского, 9"
Номер опубликования: 4601202103050015
Дата опубликования: 05.03.2021
Страница №3 из 6:
Увеличить