Официальное опубликование правовых актов
ОФИЦИАЛЬНОЕ ОПУБЛИКОВАНИЕ
Приказ Комитета по охране объектов культурного наследия Курской области от 26.02.2021 № 01.1-08/55
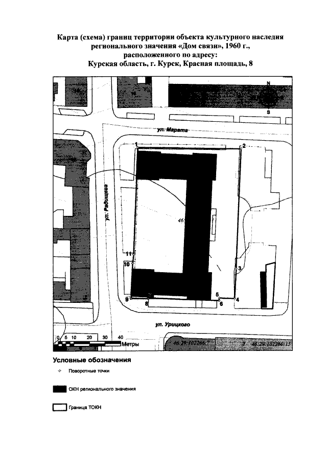
"Об утверждении границ и режима использования территории объекта культурного наследия регионального значения "Дом связи", 1960 г., расположенного по адресу: Курская область, г. Курск, Красная площадь, 8"
Номер опубликования: 4601202103030004
Дата опубликования: 03.03.2021
Страница №3 из 6:
Увеличить