Официальное опубликование правовых актов
ОФИЦИАЛЬНОЕ ОПУБЛИКОВАНИЕ
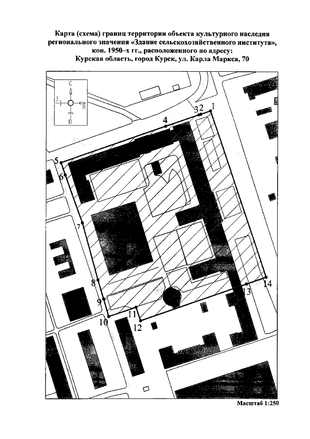
Приказ Комитета по охране объектов культурного наследия Курской области от 15.01.2021 № 01.1-08/25
"Об утверждении границ и режима использования территории объекта культурного наследия регионального значения "Здание сельскохозяйственного института", кон. 1950—х гг., расположенного по адресу: Курская область, город Курск, ул. Карла Маркса, 70"
Номер опубликования: 4601202101190004
Дата опубликования: 19.01.2021
Страница №5 из 8:
Увеличить