Официальное опубликование правовых актов
ОФИЦИАЛЬНОЕ ОПУБЛИКОВАНИЕ
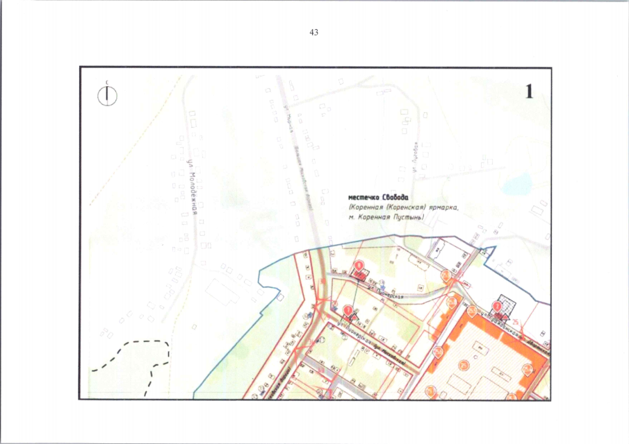
Постановление Правительства Курской области от 14.04.2023 № 455-пп
"О включении населенного пункта "Местечко Свобода Золотухинского района Курской области" в перечень исторических поселений, имеющих особое значение для истории и культуры Курской области, и утверждении границ его территории, предмета охраны, требований к градостроительным регламентам в утвержденных границах"
Номер опубликования: 4600202304200006
Дата опубликования: 20.04.2023
Страница №75 из 161:
Увеличить