Официальное опубликование правовых актов
ОФИЦИАЛЬНОЕ ОПУБЛИКОВАНИЕ
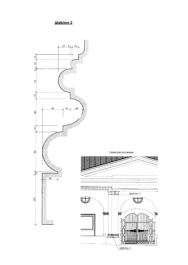
Приказ Инспекции по охране объектов культурного наследия Костромской области от 05.06.2023 № 36-НПА
"Об утверждении предмета охраны объекта культурного наследия федерального значения "Ансамбль Торговых рядов и других зданий центральной части города, XVIII-XIX вв.: Мучные ряды", XVIII-XIX вв. (Костромская область, г. Кострома)"
(Зарегистрирован 08.06.2023 № 220)
Номер опубликования: 4401202306130001
Дата опубликования: 13.06.2023
Страница №30 из 35:
Увеличить