Официальное опубликование правовых актов
ОФИЦИАЛЬНОЕ ОПУБЛИКОВАНИЕ
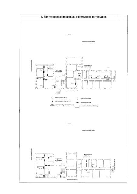
Приказ Инспекции по охране объектов культурного наследия Костромской области от 05.04.2023 № 18-НПА
"Об утверждении предмета охраны объекта культурного наследия регионального значения "Здание, в котором была создана первая в Кологриве комсомольская ячейка", 1912-1916 гг. (Костромская область, г. Кологрив, ул. Верхняя, 16)"
(Зарегистрирован 14.04.2023 № 97)
Номер опубликования: 4401202304190002
Дата опубликования: 19.04.2023
Страница №14 из 21:
Увеличить