Официальное опубликование правовых актов
ОФИЦИАЛЬНОЕ ОПУБЛИКОВАНИЕ
Приказ Инспекции по охране объектов культурного наследия Костромской области от 16.02.2023 № 6-нпа
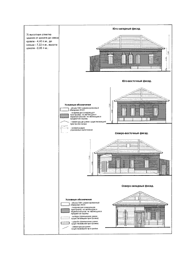
"Об утверждении предмета охраны объекта культурного наследия регионального значения "Усадьба П.С. Солониниковой (Беляева),1-я пол. XIX в.: Флигель", 1-я пол. XIX в. (Костромская область, г. Кострома, ул. Лавровская, 25 Б)"
(Зарегистрирован 17.02.2023 № 28)
Номер опубликования: 4401202302210001
Дата опубликования: 21.02.2023
Страница №6 из 10:
Увеличить