Официальное опубликование правовых актов
ОФИЦИАЛЬНОЕ ОПУБЛИКОВАНИЕ
Приказ Инспекции по охране объектов культурного наследия Костромской области от 12.07.2022 № 123
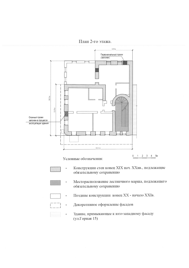
"Об утверждении предмета охраны объекта культурного наследия регионального значения "Усадьба городская, XIX – XX вв.: Дом жилой Живущева", XIX – нач. XX в. (Костромская область, г. Кострома, ул. Горная, 13)"
Номер опубликования: 4401202207150001
Дата опубликования: 15.07.2022
Страница №7 из 9:
Увеличить