Официальное опубликование правовых актов
ОФИЦИАЛЬНОЕ ОПУБЛИКОВАНИЕ
Приказ Инспекции по охране объектов культурного наследия Костромской области от 19.04.2021 № 35
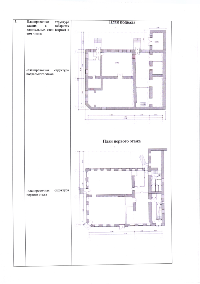
"Об утверждении предмета охраны объекта культурного наследия регионального значения "Доходный дом Днепрова, нач. XX в. (Костромская область, г. Кострома, ул. Кооперации, 8/18)"
Номер опубликования: 4401202104230001
Дата опубликования: 23.04.2021
Страница №14 из 21:
Увеличить