Официальное опубликование правовых актов
ОФИЦИАЛЬНОЕ ОПУБЛИКОВАНИЕ
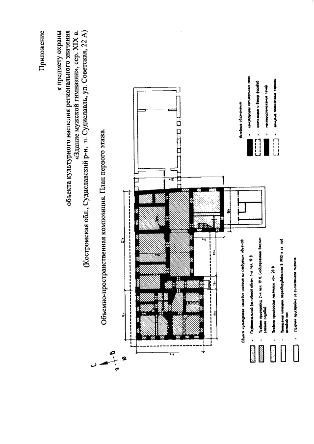
Приказ Инспекции по охране объектов культурного наследия Костромской области от 09.02.2021 № 12
"Об утверждении предмета охраны объекта культурного наследия регионального значения "Здание мужской гимназии", сер. XIX в. (Костромская обл.‚ Судиславский р-н, п. Судиславль, ул. Советская, 22 А)"
Номер опубликования: 4401202102100001
Дата опубликования: 10.02.2021
Страница №5 из 6:
Увеличить