Официальное опубликование правовых актов
ОФИЦИАЛЬНОЕ ОПУБЛИКОВАНИЕ
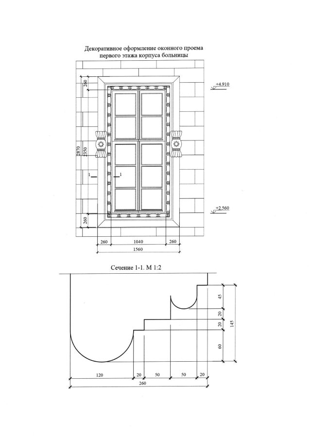
Приказ Инспекции по охране объектов культурного наследия Костромской области от 12.01.2021 № 1
"Об утверждении предмета охраны объекта культурного наследия регионального значения "Ансамбль зданий Федоровской общины сестер милосердия, нач. ХХ в.: Здание общины", нач. ХХ в. (Костромская область, г. Кострома, ул. Кооперации, д. 19 А)"
Номер опубликования: 4401202101140004
Дата опубликования: 14.01.2021
Страница №24 из 27:
Увеличить