Официальное опубликование правовых актов
ОФИЦИАЛЬНОЕ ОПУБЛИКОВАНИЕ
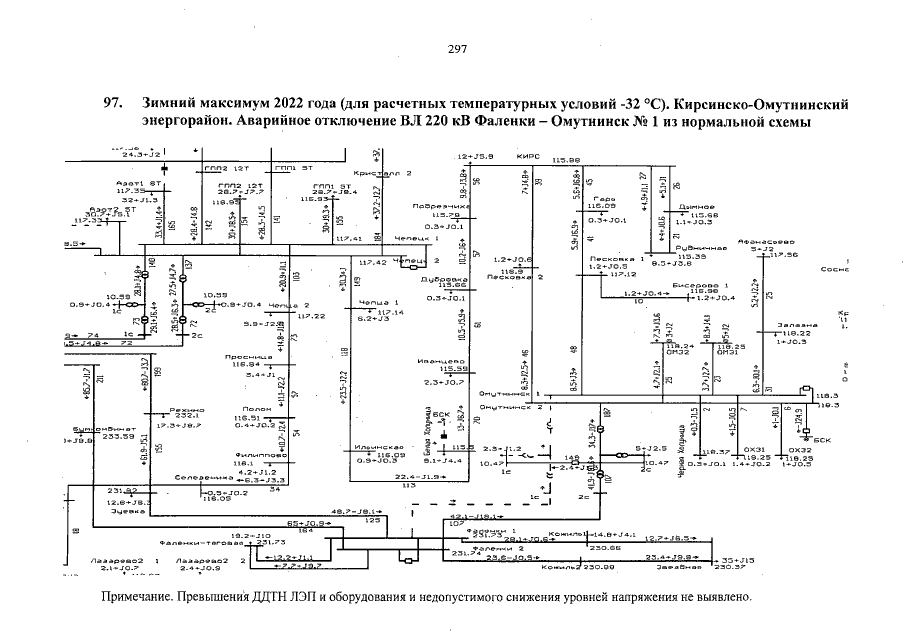
Указ Губернатора Кировской области от 27.04.2022 № 75
"Об утверждении схемы и программы перспективного развития электроэнергетики Кировской области на 2023 – 2027 годы и признании утратившим силу Указа Губернатора Кировской области от 29.04.2021 № 66"
Номер опубликования: 4300202205050002
Дата опубликования: 05.05.2022
Страница №298 из 418:
Увеличить