Официальное опубликование правовых актов
ОФИЦИАЛЬНОЕ ОПУБЛИКОВАНИЕ
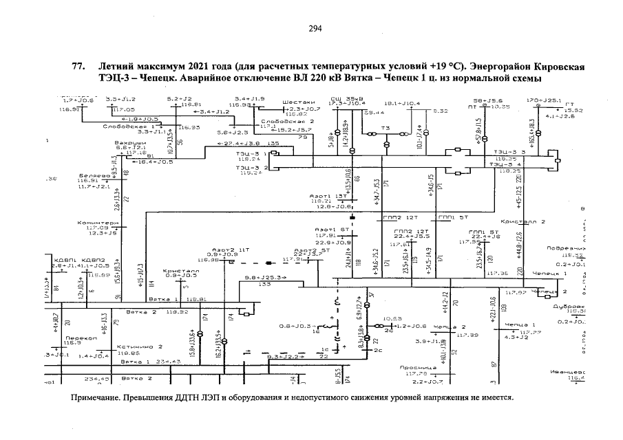
Указ Губернатора Кировской области от 29.04.2021 № 66
"Об утверждении Программы развития электроэнергетики Кировской области на 2022 – 2026 годы"
Номер опубликования: 4300202105020001
Дата опубликования: 02.05.2021
Страница №295 из 444:
Увеличить