Официальное опубликование правовых актов
ОФИЦИАЛЬНОЕ ОПУБЛИКОВАНИЕ
Постановление Правительства Кировской области от 22.06.2020 № 307-П
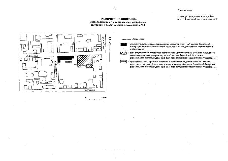
"Об установлении зон охраны объекта культурного наследия (памятника истории и культуры) народов Российской Федерации регионального значения и утверждении требований к градостроительным регламентам в границах территорий данных зон"
Номер опубликования: 4300202006230001
Дата опубликования: 23.06.2020
Страница №11 из 73:
Увеличить