Официальное опубликование правовых актов
ОФИЦИАЛЬНОЕ ОПУБЛИКОВАНИЕ
Постановление Правительства Кировской области от 03.04.2018 № 142-П
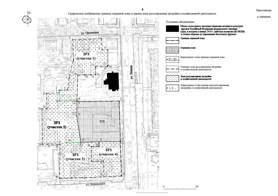
"Об утверждении границ зон охраны объекта культурного наследия (памятника истории и культуры) народов Российской Федерации федерального значения "Дом, в котором в январе 1919 г. работала комиссия ЦК РКП(б) и Совета обороны по укреплению Восточного фронта", особых режимов использования земель в границах территорий данных зон и требований к градостроительным регламентам в границах территорий данных зон"
Номер опубликования: 4300201804060002
Дата опубликования: 06.04.2018
Страница №10 из 18:
Увеличить