Официальное опубликование правовых актов
ОФИЦИАЛЬНОЕ ОПУБЛИКОВАНИЕ
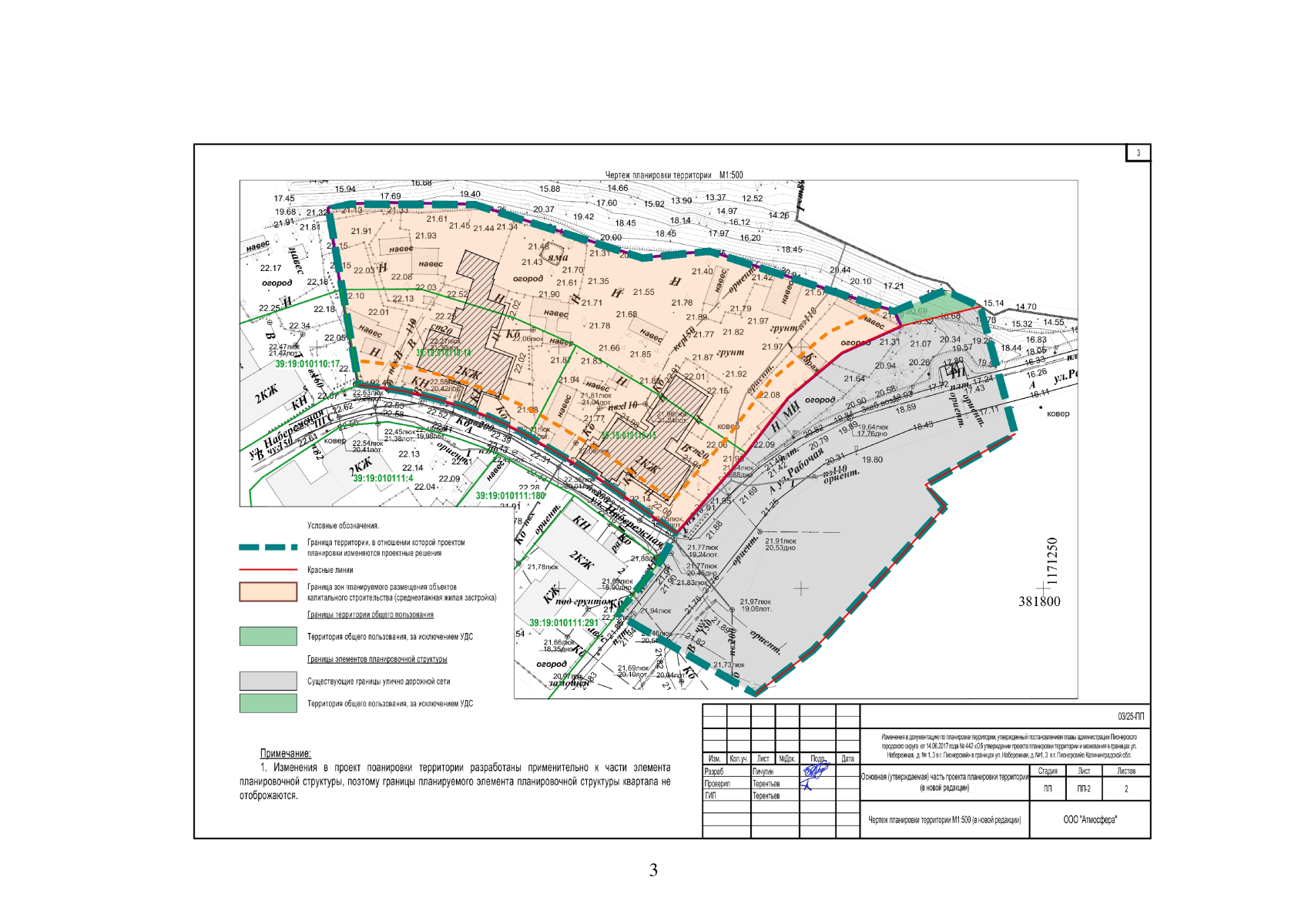
Приказ Министерства градостроительной политики Калининградской области от 27.02.2026 № 100
"Об утверждении изменений в документацию по планировке территории, утвержденную постановлением администрации Пионерского городского округа Калининградской области от 14 июля 2017 года № 442"
(Зарегистрирован 27.02.2026 № ГР/152/2026)
Номер опубликования: 3901202603020004
Дата опубликования: 02.03.2026
Страница №5 из 15:
Увеличить