Официальное опубликование правовых актов
ОФИЦИАЛЬНОЕ ОПУБЛИКОВАНИЕ
Приказ Министерства градостроительной политики Калининградской области от 08.10.2025 № 373
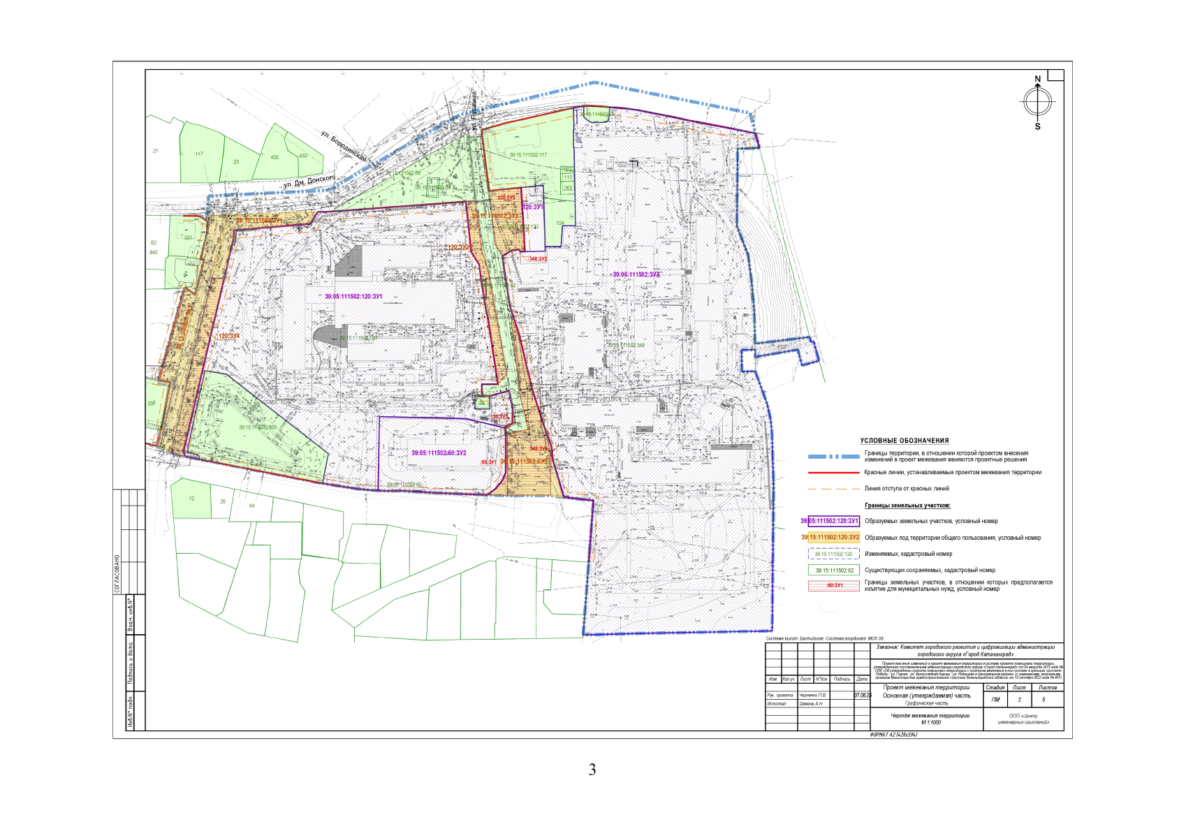
"Об утверждении изменений в проект межевания территории в составе проекта планировки территории, утвержденного постановлением администрации городского округа "Город Калининград" от 04 августа 2015 года № 1256"
(Зарегистрирован 08.10.2025 № ГР/716/2025)
Номер опубликования: 3901202510150006
Дата опубликования: 15.10.2025
Страница №5 из 15: