Официальное опубликование правовых актов
ОФИЦИАЛЬНОЕ ОПУБЛИКОВАНИЕ
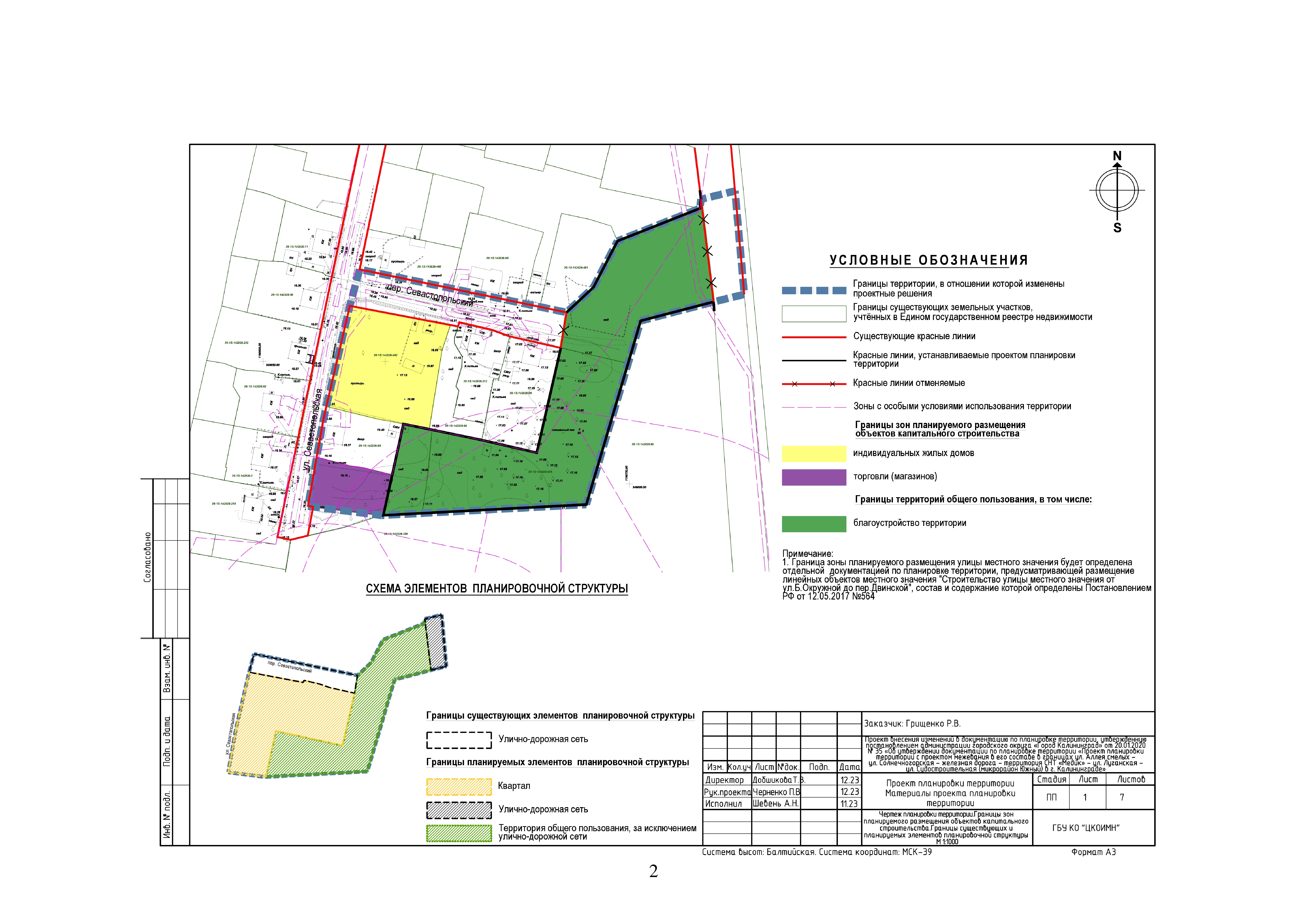
Приказ Министерства градостроительной политики Калининградской области от 07.03.2024 № 86
"Об утверждении проекта внесения изменений в документацию по планировке территории, утвержденную постановлением администрации городского округа "Город Калининград" от 20 января 2020 года № 35"
(Зарегистрирован 07.03.2024 № ГР/181/2024)
Номер опубликования: 3901202403100001
Дата опубликования: 10.03.2024
Страница №4 из 18: