Официальное опубликование правовых актов
ОФИЦИАЛЬНОЕ ОПУБЛИКОВАНИЕ
Постановление Правительства Амурской области от 17.02.2026 № 94
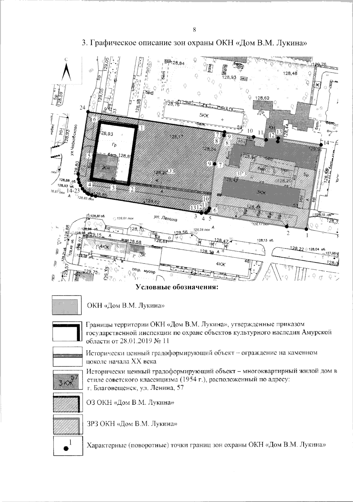
"Об установлении зон охраны объекта культурного наследия регионального значения "Дом В.М. Лукина", около 1900 г. (Амурская область, г. Благовещенск, ул. Ленина, 61) и утверждении требований к градостроительным регламентам в границах территорий данных зон"
Номер опубликования: 2800202602190001
Дата опубликования: 19.02.2026
Страница №9 из 9:
Увеличить