Постановление Правительства Амурской области от 06.02.2026 № 67
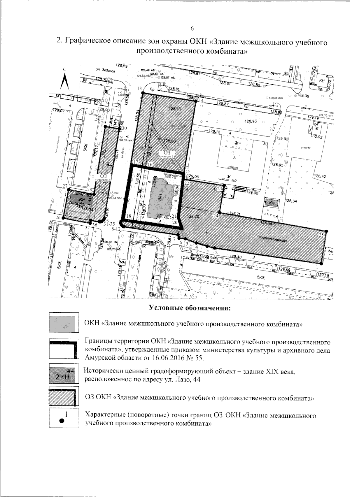
"Об установлении зон охраны объекта культурного наследия регионального значения "Здание межшкольного учебного производственного комбината", 1915 г. (Амурская область, г. Благовещенск, ул. Лазо, 41) и утверждении требований к градостроительным регламентам в границах территорий данных зон"
"Об установлении зон охраны объекта культурного наследия регионального значения "Здание межшкольного учебного производственного комбината", 1915 г. (Амурская область, г. Благовещенск, ул. Лазо, 41) и утверждении требований к градостроительным регламентам в границах территорий данных зон"
Номер опубликования: 2800202602120003
Дата опубликования:
12.02.2026
