Официальное опубликование правовых актов
ОФИЦИАЛЬНОЕ ОПУБЛИКОВАНИЕ
Постановление Правительства Амурской области от 06.02.2026 № 68
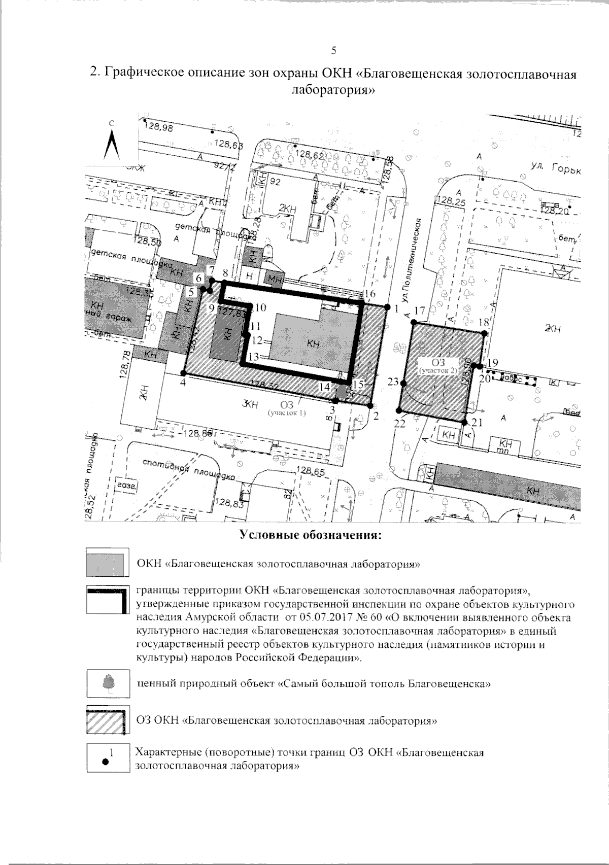
"Об установлении зон охраны объекта культурного наследия регионального значения "Благовещенская золотосплавочная лаборатория", 1902 г. (Амурская область, г. Благовещенск, ул. Политехническая, 84) и утверждении требований к градостроительным регламентам в границах территорий данных зон"
Номер опубликования: 2800202602120002
Дата опубликования: 12.02.2026
Страница №6 из 6:
Увеличить