Постановление Правительства Амурской области от 05.02.2026 № 58
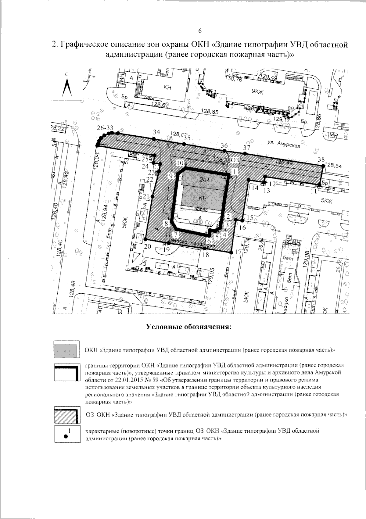
"Об установлении зон охраны объекта культурного наследия регионального значения "Здание типографии УВД областной администрации (ранее городская пожарная часть)", кон. XIX в. (Амурская область, г. Благовещенск, ул. Амурская, 72) и утверждении требований к градостроительным регламентам в границах территорий данных зон"
"Об установлении зон охраны объекта культурного наследия регионального значения "Здание типографии УВД областной администрации (ранее городская пожарная часть)", кон. XIX в. (Амурская область, г. Благовещенск, ул. Амурская, 72) и утверждении требований к градостроительным регламентам в границах территорий данных зон"
Номер опубликования: 2800202602060010
Дата опубликования:
06.02.2026
