Официальное опубликование правовых актов
ОФИЦИАЛЬНОЕ ОПУБЛИКОВАНИЕ
Указ Губернатора Алтайского края от 29.04.2020 № 69
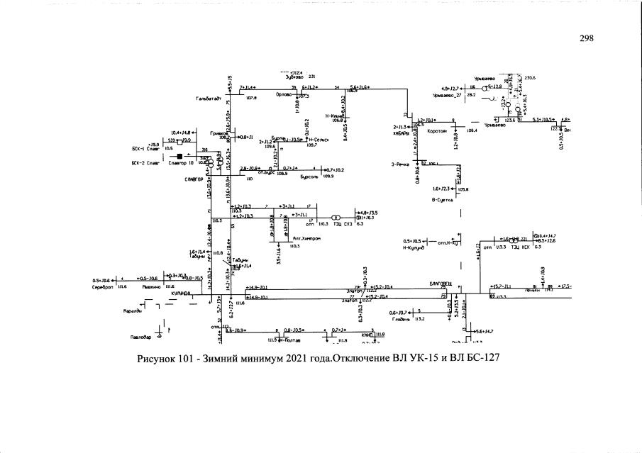
"Об утверждении схемы и программы "Развитие электроэнергетики Алтайского края" на 2021 – 2025 годы и о внесении изменений в указ Губернатора Алтайского края от 30.04.2019 № 72"
Номер опубликования: 2200202004300008
Дата опубликования: 30.04.2020
Страница №298 из 376:
Увеличить