Официальное опубликование правовых актов
ОФИЦИАЛЬНОЕ ОПУБЛИКОВАНИЕ
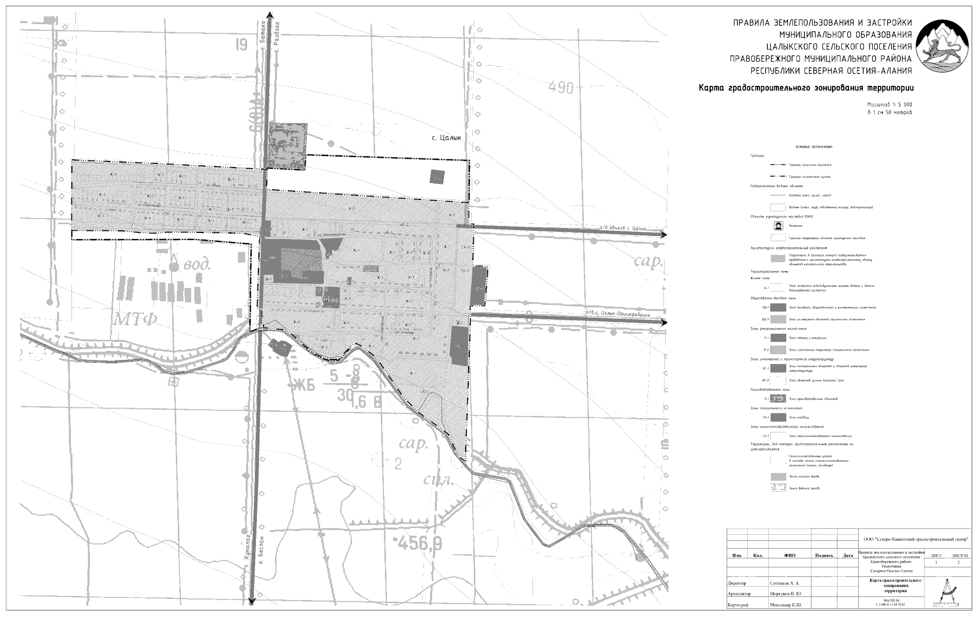
Приказ Министерства строительства и архитектуры Республики Северная Осетия-Алания от 12.11.2024 № 64
"Об утверждении Правил землепользования и застройки Цалыкского сельского поселения Правобережного муниципального района Республики Северная Осетия - Алания"
(Зарегистрирован 13.11.2024 № 0321-24-1)
Номер опубликования: 1501202411180003
Дата опубликования: 18.11.2024
Страница №196 из 197: