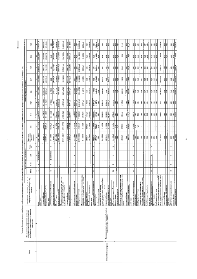
Постановление Правительства Республики Калмыкия от 30.06.2016 № 210
"О внесении изменений в постановление Правительства Республики Калмыкия от 11 июня 2013 г. № 293"
"О внесении изменений в постановление Правительства Республики Калмыкия от 11 июня 2013 г. № 293"
Номер опубликования: 0800201607040001
Дата опубликования:
04.07.2016
