Официальное опубликование правовых актов
ОФИЦИАЛЬНОЕ ОПУБЛИКОВАНИЕ
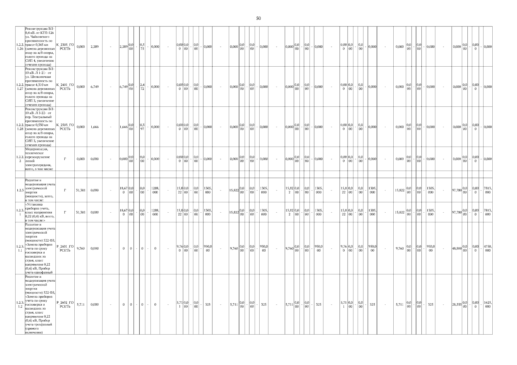
Приказ Министерства строительства и жилищно-коммунального хозяйства Республики Алтай от 02.12.2025 № П-07-01/521
"Об утверждении инвестиционной программы в сфере электроэнергетики для общества с ограниченной ответственностью "Горно-Алтайское городское предприятие электрических сетей" на 2025 - 2028 годы и о внесении изменений в приказ Комитета по тарифам Республики Алтай от 25 декабря 2020 года № 45-ВД"
(Зарегистрирован 03.12.2025 № 735)
Номер опубликования: 0401202512030002
Дата опубликования: 03.12.2025
Страница №50 из 75:
Увеличить