Официальное опубликование правовых актов
ОФИЦИАЛЬНОЕ ОПУБЛИКОВАНИЕ
Приказ Управления по государственной охране объектов культурного наследия Республики Башкортостан от 04.02.2026 № 55
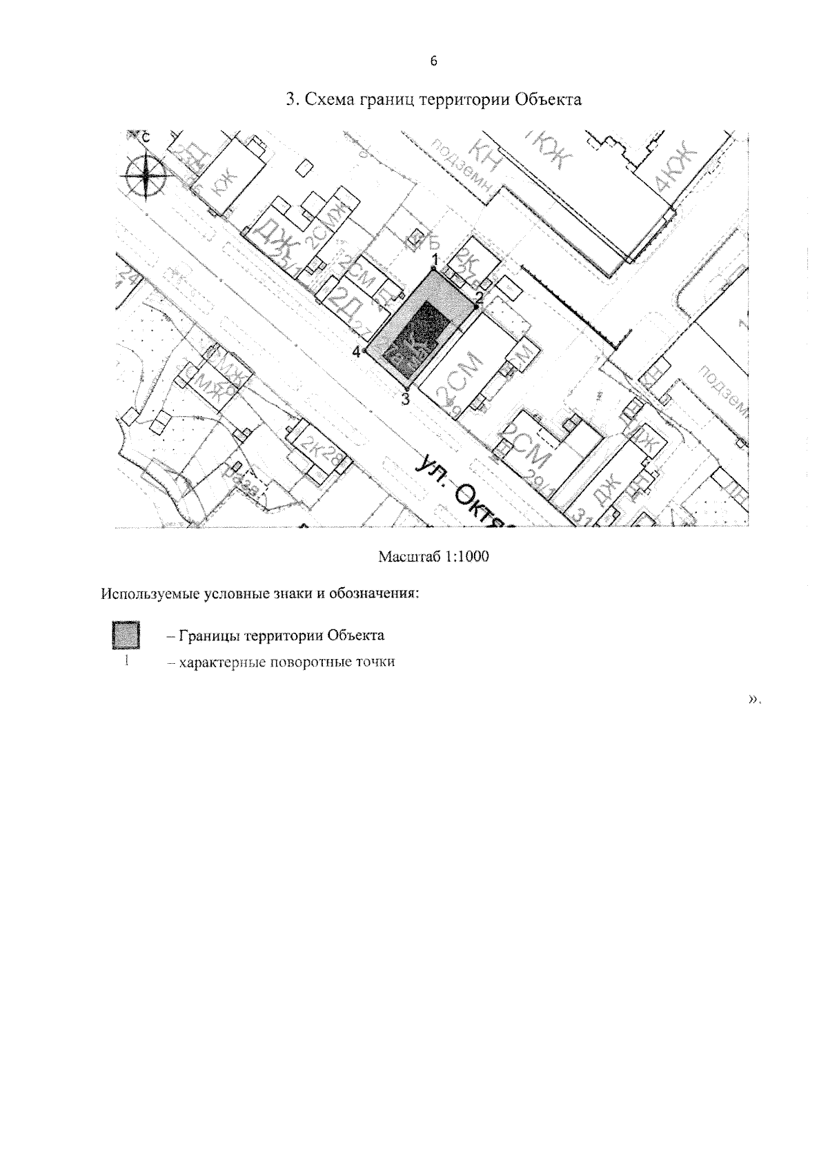
"О внесении изменений в приказ Управления по государственной охране объектов культурного наследия Республики Башкортостан от 04 февраля 2019 года № 26 "О включении выявленного объекта культурного наследия "Комитет попечительства о бедных (II-е здание в усадебном комплексе)", 11-я пол. XIX в., расположенного по адресу: Республика Башкортостан, г. Уфа, ул. Октябрьской революции, д. 27/1, в Единый государственный реестр объектов культурного наследия (памятников истории и культуры) народов Российской Федерации в качестве объекта культурного наследия регионального значения, утверждении его предмета охраны, границ и режима использования территории"
(Зарегистрирован 24.02.2026 № 25912)
Номер опубликования: 0201202603020001
Дата опубликования: 02.03.2026
Страница №6 из 8:
Увеличить