Приказ Управления по государственной охране объектов культурного наследия Республики Башкортостан от 28.01.2026 № 18
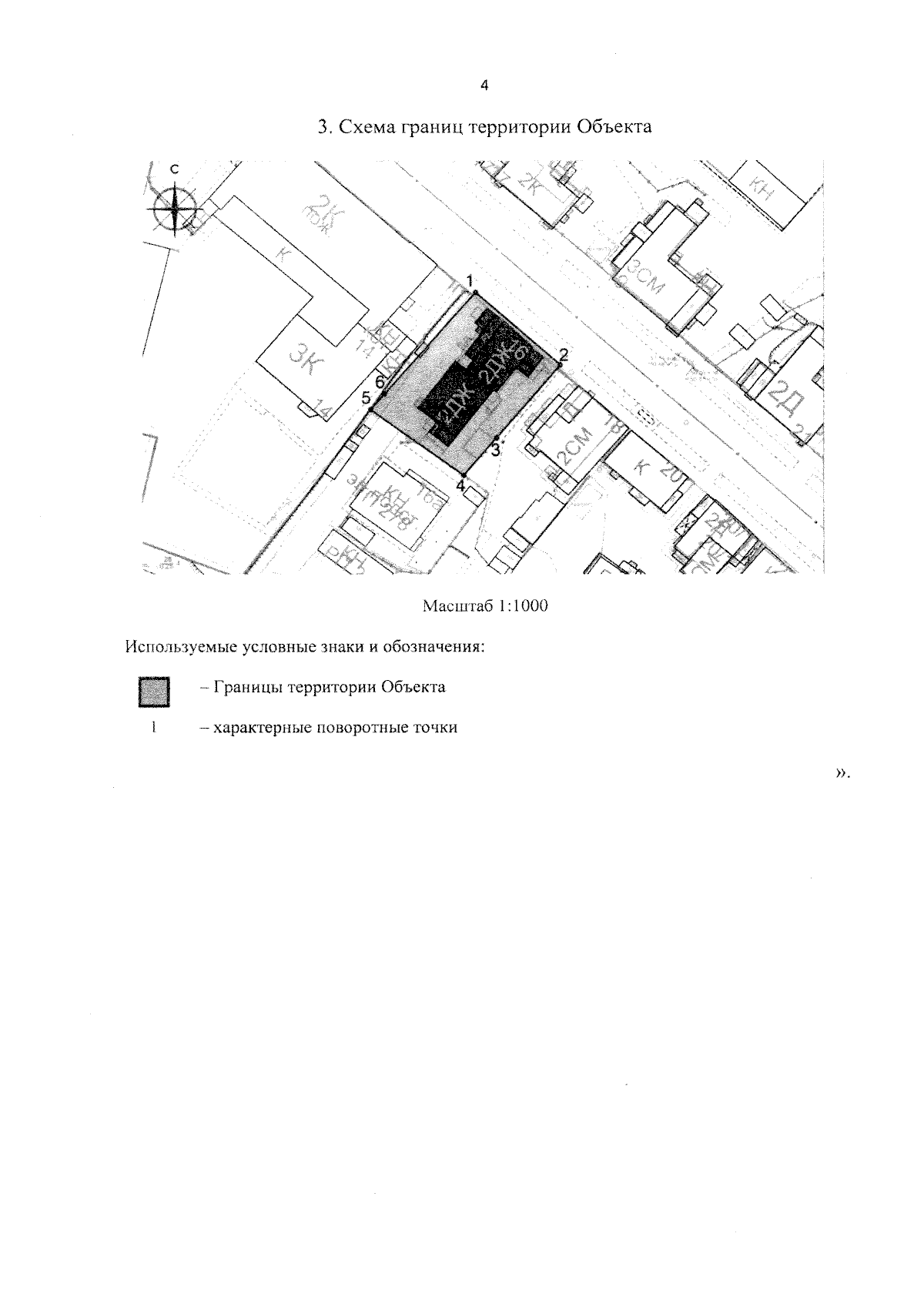
"О внесении изменений в приказ Управления по государственной охране объектов культурного наследия Республики Башкортостан от 22 октября 208 года № 328 "О включении выявленного объекта культурного наследия "Дом Петровского К.Л.", 1890–е г.г., расположенного по адресу: Республика Башкортостан, г. Уфа, ул. Октябрьской Революции, д. 16, в Единый государственный реестр объектов культурного наследия (памятников истории и культуры) народов Российской Федерации в качестве объекта культурного наследия регионального значения, утверждения его предмета охраны, границ и режима использования территории"
(Зарегистрирован 16.02.2026 № 25884)
"О внесении изменений в приказ Управления по государственной охране объектов культурного наследия Республики Башкортостан от 22 октября 208 года № 328 "О включении выявленного объекта культурного наследия "Дом Петровского К.Л.", 1890–е г.г., расположенного по адресу: Республика Башкортостан, г. Уфа, ул. Октябрьской Революции, д. 16, в Единый государственный реестр объектов культурного наследия (памятников истории и культуры) народов Российской Федерации в качестве объекта культурного наследия регионального значения, утверждения его предмета охраны, границ и режима использования территории"
(Зарегистрирован 16.02.2026 № 25884)
Номер опубликования: 0201202602200002
Дата опубликования:
20.02.2026
