Официальное опубликование правовых актов
ОФИЦИАЛЬНОЕ ОПУБЛИКОВАНИЕ
Приказ Министерства Российской Федерации по развитию Дальнего Востока и Арктики от 24.08.2022 № 106
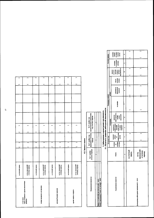
"Об утверждении формы отчета о финансово-экономическом состоянии получателей средств на возмещение части прямых понесенных затрат на создание и (или) модернизацию тепличных комплексов для производства овощей в защищенном грунте в Дальневосточном федеральном округе и сроков его предоставления"
(Зарегистрирован 23.09.2022 № 70204)
Номер опубликования: 0001202209230024
Дата опубликования: 23.09.2022
Страница №19 из 44:
Увеличить