Официальное опубликование правовых актов
ОФИЦИАЛЬНОЕ ОПУБЛИКОВАНИЕ
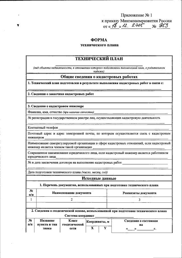
Приказ Министерства экономического развития Российской Федерации от 18.12.2015 № 953
"Об утверждении формы технического плана и требований к его подготовке, состава содержащихся в нем сведений, а также формы декларации об объекте недвижимости, требований к ее подготовке, состава содержащихся в ней сведений"
(Зарегистрирован 02.03.2016 № 41304)
Номер опубликования: 0001201603090013
Дата опубликования: 09.03.2016
Страница №3 из 85:
Увеличить