Официальное опубликование правовых актов
ОФИЦИАЛЬНОЕ ОПУБЛИКОВАНИЕ
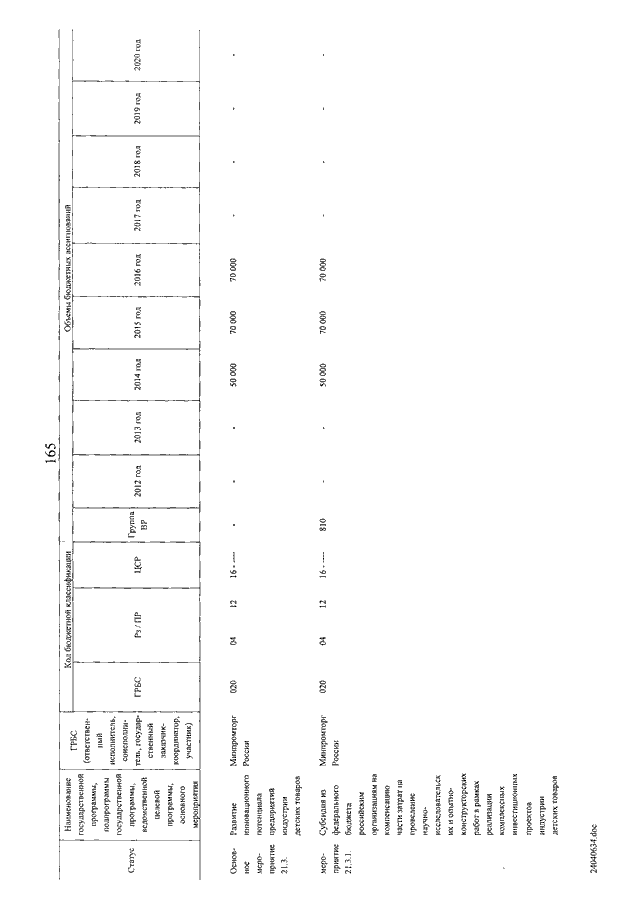
Постановление Правительства Российской Федерации от 15.04.2014 № 328
"Об утверждении государственной программы Российской Федерации "Развитие промышленности и повышение ее конкурентоспособности"
Номер опубликования: 0001201404240003
Дата опубликования: 24.04.2014
Страница №364 из 366:
Увеличить